Δ: Αθήνα, Εξάρχεια, Τοσίτσα 24, 10683
Προτείνεται η δημιουργία ενός εσωστρεφούς δυναμικού χώρου που υποδέχεται την ανθρώπινη δράση.
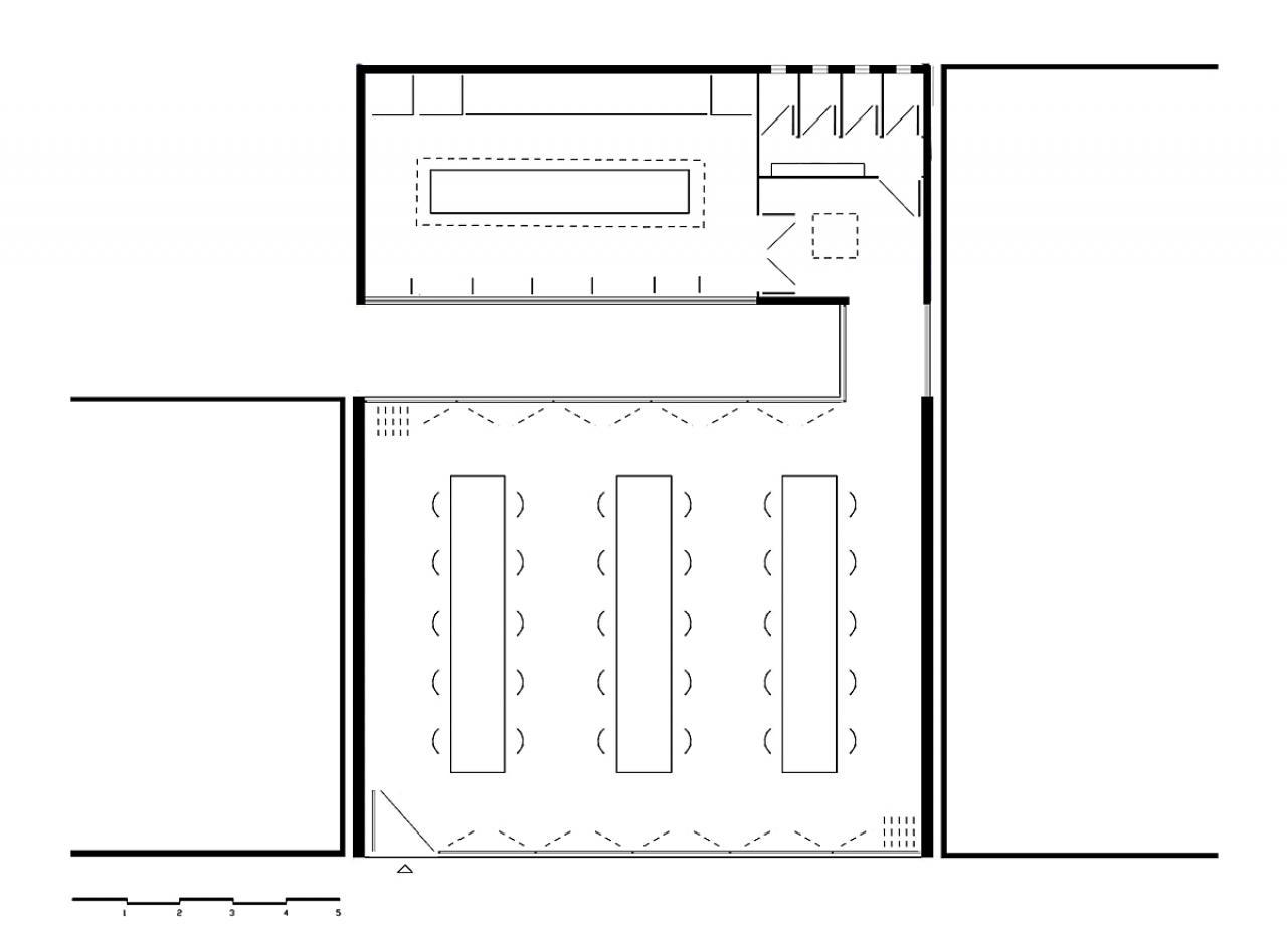
Η μελέτη αφορά στη μετατροπή μιας υφιστάμενης δομής σε ημιυπαίθριο καφέ - αναγνωστήριο. Οι παρεμβάσεις στο ήδη υπάρχον κέλυφος αναπτύσσονται σύμφωνα με τις εξής συνθετικές αρχές: ο χώρος να αποτελέσει προέκταση του δημόσιου περάσματος και να επιτευχθεί η διάκριση των λειτουργικών περιοχών, ώστε να εξασφαλιστεί η αναβάθμιση του χώρου. Στον κεντρικό χώρο διατάσσεται το καφέ – αναγνωστήριο, ενώ οι βοηθητικοί χώροι οργανώνονται σε διακριτή περιοχή.
Δημιουργία αιθριακού χώρου ανάμεσα στην κεντρική και στη δευτερεύουσα λειτουργική ζώνη. Η συνθετική αυτή χειρονομία, σκοπεύει στο να εξασφαλιστεί οπτική εκτόνωση και διαμπερότητα.
Διατήρηση της υφιστάμενης ελαφριάς κατασκευής της οροφής που δύναται να μετατρέψει το καφέ από κλειστό σε αιθριακό χώρο λόγω της πτυσσόμενης φύσης της.
Ο χώρος που δημιουργείται, εισάγει την έννοια του μεταβλητού, ενώ η έννοια του ορίου αποκτά πολλαπλές ερμηνείες.
ΕΚΘΕΣΕΙΣ - ΔΗΜΟΣΙΕΥΣΕΙΣ
8η Πανελλήνια έκθεση Αρχιτεκτονικού έργου 'THE MARGIN', Πάτρα, Στοά Αργύρη, 2016
Επετηρίδα Ελληνικής αρχιτεκτονικής, ΔΟΜΕΣ - International Review of Architecture, 2017
ΤΟΠΟΣ
Αθήνα, Γκάζι
ΧΡΟΝΟΛΟΓΙΑ
2015
ΤΥΠΟΣ ΚΤΙΡΙΟΥ
Αναψυκτήριο - Αναγνωστήριο
ΑΡΧΙΤΕΚΤΟΝΑΣ
Γιάννης Γιαννούτσος
ΣΥΜΒΟΥΛΟΙ ΜΗΧΑΝΙΚΟΙ
Social Engineering. Β., Π. Κούτσικος










